| 物件種別 | 売買(建物・土地) | ||
| 売買価格 | 100万円 | ||
| 賃貸価格 | |||
| 物件所在地 | 長崎県佐世保市黒髪町 | ||
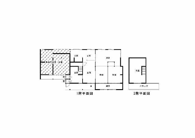
| 建物-構造 | 木造2階建 | 建物-築年月 | 築90年 |
| 建物-面積 | 119.04 ㎡ | 建物-間取 | 4部屋 |
| 土地-面積 | 185.00 ㎡ | 土地-地目 | |
| 土地-用途地域 | 土地-都市計画 | ||
| 土地-接道 | 土地-権利 | ||
| 駐車場 | 5台 | ||
| 交通 | 日宇駅 4km | ||
| 生活環境 | |||
| 設備-電気 | 設備-給湯 | ||
| 設備-水道 | 公営水道 | 設備-排水 | 汲み取り |
| 設備-トイレ | |||
| 増築・リフォーム歴 | |||
| 補修必要程度 | 小規模 | 補修費負担 | |
| 補修必要内容 | 軽微な内装補修 | ||
| 利用状況 | 空き家期間 20 年 | ||
| 付帯物件・その他 | 庭, 倉庫, 土間, 縁側, ベランダ, 囲炉裏 | ||
| 管理費・自治会費・税金等 | |||
| 敷金・礼金・仲介手数料等 | |||
| 特記事項 | 庭100.00㎡ | ||
| 備考 | 注意)市街化調整区域(建築等が制限される区域です。) ※下記空き家バンクURLより、物件確認とお問合せをお願いいたします。 |
||
| 参照URL | 自治体ホームページ | ||
| 物件番号 | 空き家バンク物件 120 | ||
| 取引態様 | |||
| 事業者名 | |||
| 事業者所在地 | |||
| 事業者連絡先 | |||
| 掲載日/更新日 | 2025年10月13日 | 2025年10月29日 | |
| 直通メールフォーム | |||
![]()


















