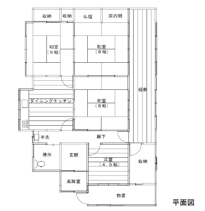
空き家バンク【売買】0円(無償譲渡)富山県中新川郡上市町若杉1丁目 駅徒歩圏内・生活便利・大正7年築 作業場・車庫付き10DK2階建古民家 広縁・続き間有
売買価格:0円(無償譲渡) | 賃貸価格: | | 建物-面積:住宅:190.90㎡(約57.74坪)、作業場:昭和42年、車庫:昭和62年 | 土地-面積:宅地:319.28㎡(約96.58坪)、田:226㎡(約68.36坪)、用悪水路:7.33㎡(約2.21坪) | 建物-築年月:住宅:大正7年・昭和44年、作業場:昭和42年、車庫:昭和62年 | 物件番号:空き家バンク物件 37