大分県 - Sumai空き家

掲載空き家2,880件

地域選択

コンテンツへ移動
  • お気に入り物件リスト
  • 当サイトの使い方
  • 無料掲載方法

Sumai空き家

全国の空き家・古民家物件を地域別・条件別に検索できます

Sumai空き家 > 九州 > 大分県

大分県

1 2 … 14 >>

空き家バンク【売買】180万円 大分県国東市安岐町瀬戸田 眺めの良い高台・補修不要・空港近い 畑・山林・原野・庭・倉庫2棟・駐車場付き6DK2階建

売買価格:180万円 | 賃貸価格: | 6DK | 建物-面積:118.23㎡ | 土地-面積:宅地496.48m2、畑1036m2、山林4872m2、原野669m2 | 建物-築年月:1981年 | 物件番号:空き家バンク物件 609

空き家バンク【売買】460万円 山梨県西八代郡市川三郷町市川大門 買物便利 庭・物置・駐車場4台付き3LDK平屋 上下水道

売買価格:460万円 | 賃貸価格: | 3LDK | 建物-面積:84.90㎡ | 土地-面積:285.20㎡ | 建物-築年月:昭和50年 | 物件番号:空き家バンク物件 121

空き家バンク【賃貸】2.5万円 大分県中津市耶馬溪町三尾母 里山と田園風景を望む・平成6年築 倉庫・駐車場付き5DK平屋

売買価格: | 賃貸価格:2.5万円 | 5DK | 建物-面積:113.09 ㎡ | 土地-面積:507.36 ㎡ | 建物-築年月:1994 年 | 物件番号:空き家バンク物件 421

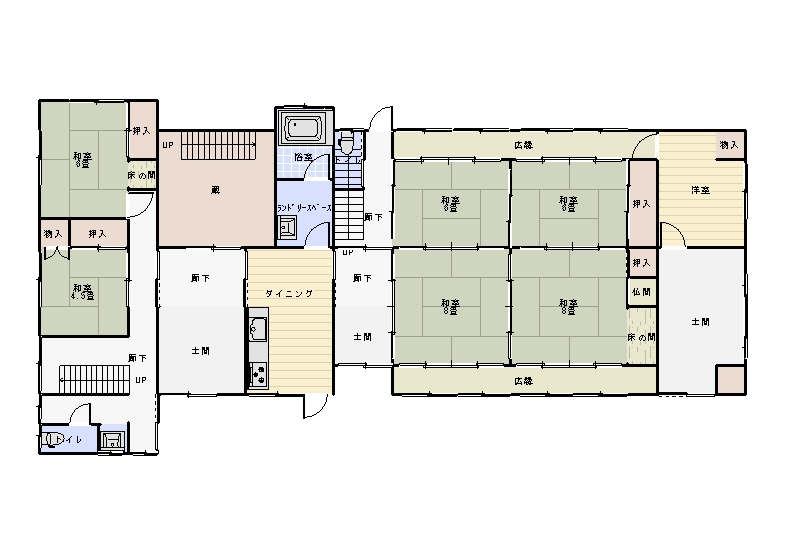
空き家バンク【売買】250万円 大分県杵築市山香町大字吉野渡 自然豊かな場所・広い敷地・家庭菜園可 駐車場10台付き9部屋2階建古民家 水洗トイレ 土間・縁側・掘りごたつ・太陽熱温水器有

売買価格:250万円 | 賃貸価格: | 9部屋 | 建物-面積:159㎡ | 土地-面積:770㎡ | 建物-築年月:1964年 | 物件番号:空き家バンク物件 538

空き家バンク【売買】200万円 愛知県豊田市実栗町 大正3年築 山林・離れ・借駐車場2台付き9部屋2階建古民家

売買価格:200万円 | 賃貸価格: | 9部屋+離れ2部屋 | 建物-面積:247.03㎡ | 土地-面積:宅地581.81㎡ 山林25,309 ㎡ | 建物-築年月:大正3 年、昭和23 年、昭和30 年 | 物件番号:空き家バンク物件 足助-115

(交渉中)空き家バンク【売買】200万円【賃貸】2万円 岐阜県加茂郡白川町水戸野 平成8年築 駐車場付き3LDKコンパクト平屋 水洗トイレ

売買価格:200万円 | 賃貸価格:2万円 賃貸後売買をご希望の方は、賃貸15,000円も可能 | 3LDK | 建物-面積:66㎡ | 土地-面積:510㎡ | 建物-築年月:1996年 | 物件番号:空き家バンク物件 10911

空き家バンク【売買】120万円 岐阜県加茂郡白川町切井 広い敷地 田・山林・離れ2部屋・駐車場付き5部屋平屋古民家 縁側有

売買価格:120万円(応相談) | 賃貸価格: | 5部屋 | 建物-面積:209㎡ | 土地-面積:731㎡ | 建物-築年月:1969年 | 物件番号:空き家バンク物件 22808

(内覧中)空き家バンク【売買】100万円 奈良県吉野郡下北山村下桑原 畑・山林・小屋・駐車場2台付き7DK2階建古民家 水洗トイレ 木桶風呂有

売買価格:100万円 | 賃貸価格: | 7DK | 建物-面積: | 土地-面積:482.24㎡ | 建物-築年月:不詳 | 物件番号:空き家バンク物件 929

空き家バンク【売買】300万円 大分県津久見市大字上青江 庭・物置・車庫付き3部屋平屋古民家 水洗トイレ

売買価格:300万円 | 賃貸価格: | 3部屋 | 建物-面積: 84.74㎡ | 土地-面積:237.02㎡ | 建物-築年月:1964年 | 物件番号:空き家バンク物件 162

(価格変更)空き家バンク【売買】360万円→230万円 愛知県豊田市野原町 庭・ベランダ・物置・駐車場付き5部屋2階建古民家 水洗トイレ 縁側・続き間・掘りごたつ有

売買価格:230万円 | 賃貸価格: | 5部屋 | 建物-面積:116.00㎡ | 土地-面積:271.92㎡ | 建物-築年月:昭和33年 | 物件番号:空き家バンク物件 下山-53

投稿ナビゲーション

← 過去の投稿

地域別

検索

お役立ちページ

  • お気に入り物件リスト
  • 当サイトの使い方
  • 無料掲載方法

お役立ちリンク

  • 全国の頑張っている方々

空き家バンク・リンク




当サイトのご利用方法 |無料掲載方法 | 運営 | プライバシーポリシー
(C) Sumai事務局