南陽市 - Sumai空き家

掲載空き家2,879件

地域選択

コンテンツへ移動
  • お気に入り物件リスト
  • 当サイトの使い方
  • 無料掲載方法

Sumai空き家

全国の空き家・古民家物件を地域別・条件別に検索できます

Sumai空き家 > 東北 > 山形県 > 南陽市

南陽市

空き家バンク【売買】350万円 山形県南陽市下荻 広い敷地・平成元年築 駐車場2台付き6SDK2階建 各階水洗トイレ

売買価格:350万円 | 賃貸価格: | 6SDK | 建物-面積:1階122.07㎡ 2階66.24㎡ | 土地-面積:宅地・原野765.76㎡ 宅地379.76㎡ 雑種地386㎡ | 建物-築年月:平成元年 | 物件番号:空き家バンク物件 91

空き家バンク【売買】67万円 山形県南陽市宮内 駅徒歩圏内 シャッター車庫・駐車場付き4DK2階建

売買価格:67万円 | 賃貸価格: | 4DK | 建物-面積:1階61.27㎡ 2階48.85㎡ | 土地-面積:120.66㎡ | 建物-築年月:昭和55年 | 物件番号:空き家バンク物件 90

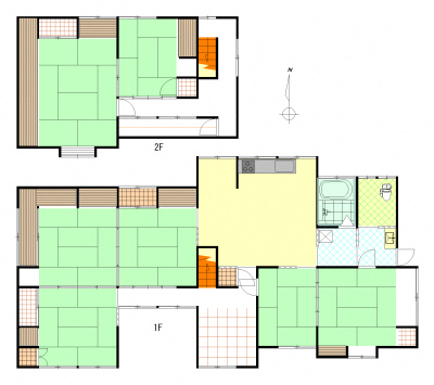
空き家バンク【売買】280万円 山形県南陽市川樋 高台・日当り良好 畑・車庫兼物置・駐車場4台付き7DK2階建 水洗トイレ

売買価格:280万円 | 賃貸価格: | 7DK | 建物-面積:1階133.93㎡ 2階50.51㎡ | 土地-面積:448.96㎡ 畑1839㎡ | 建物-築年月:不詳 | 物件番号:空き家バンク物件 89

空き家バンク【売買】300万円 山形県南陽市赤湯 通学便利 駐車場2台付き4部屋平屋古民家 上下水道

売買価格:300万円 | 賃貸価格: | 4部屋 | 建物-面積:91.91㎡ | 土地-面積:212.22㎡ | 建物-築年月:昭和46年 | 物件番号:空き家バンク物件 86

(調整中)空き家バンク【売買】250万円 山形県南陽市池黒 作業場・車庫付き9DK2階建 上下水道・各階水洗トイレ 広縁・続き間有

売買価格:250万円 | 賃貸価格: | 9DK | 建物-面積:1階98.09㎡ 2階49.91㎡ | 土地-面積:367.61㎡ | 建物-築年月:昭和50年5月15日 | 物件番号:空き家バンク物件 71

地域別

検索

お役立ちページ

  • お気に入り物件リスト
  • 当サイトの使い方
  • 無料掲載方法

お役立ちリンク

  • 全国の頑張っている方々

空き家バンク・リンク




当サイトのご利用方法 |無料掲載方法 | 運営 | プライバシーポリシー
(C) Sumai事務局