(古民家)大正築 - Sumai空き家 - Page 2

掲載空き家3,114件

地域選択

コンテンツへ移動
  • お気に入り物件リスト
  • 当サイトの使い方
  • (旧)変更・削除申込
  • 無料掲載方法

Sumai空き家

全国の空き家・古民家物件を地域別・条件別に検索できます

Sumai空き家 > (古民家)大正築

(古民家)大正築

<< 1 2 3 … 8 >>

空き家バンク【売買】200万円 三重県多気郡大台町小切畑 大正6年築 田畑・原野・庭・駐車場付き6DK平屋古民家 三面縁側・続き間有

売買価格:200万円 | 賃貸価格: | 6DK | 建物-面積:131.67㎡ | 土地-面積:宅地:360.16㎡ 田畑:385㎡ 原野:36㎡ | 建物-築年月:1917年 | 物件番号:空き家バンク物件 249

空き家バンク【売買】200万円(借地)山形県西置賜郡白鷹町大字滝野 長閑な山間・広い敷地・大正15年築 庭・物置・駐車場付き9SDK2階建古民家 回り縁・続き間有

売買価格:200万円 | 賃貸価格: | 9SDK | 建物-面積:232.50㎡ | 土地-面積:2,829.57㎡ 地代 年額5,500円予定 | 建物-築年月:1926年1月 | 物件番号:空き家バンク物件 W—27 滝野地区(W) 

空き家バンク【売買】120万円 島根県浜田市三隅町古市場 海近い・店舗利用可・大正13年築 車庫付き6DK2階建古民家

売買価格:120万円 | 賃貸価格: | 6DK | 建物-面積:179.85㎡ | 土地-面積:109.02㎡ | 建物-築年月:大正13年 | 物件番号:空き家バンク物件 三隅-171

空き家バンク【売買】100万円(応相談)山口県岩国市錦町宇佐郷 自然豊かな場所・大正14年築 納屋・駐車場2台付き4DK2階建古民家 水洗トイレ 回り廊下・続き間・薪風呂・掘りごたつ有

売買価格:100万円(応相談) | 賃貸価格: | | 建物-面積:194㎡ | 土地-面積:498㎡ | 建物-築年月:大正14年 | 物件番号:空き家バンク物件 202

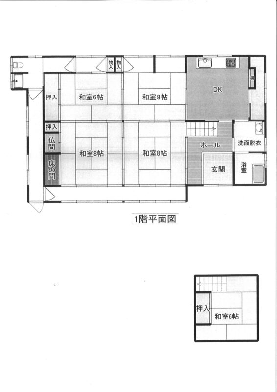
空き家バンク【売買】300万円 岐阜県恵那市岩村町 大正15年築・広い敷地 田・庭・物置・駐車場付き2階建古民家 上下水道

売買価格:300万円 | 賃貸価格: | | 建物-面積:218.06㎡ | 土地-面積:1004.49㎡ 田 9筆5707㎡、宅地 1筆191.79㎡ | 建物-築年月:大正15年 | 物件番号:空き家バンク物件 957

(価格変更)空き家バンク【売買】180万円→120万円 岐阜県美濃市長瀬 大正10年築 畑・庭・物置・駐車場2台付き8DK2階建古民家 土間・二面縁側・続き間有

売買価格:120万円 | 賃貸価格: | 8DK | 建物-面積:178㎡ | 土地-面積:482.64㎡ 畑188㎡ | 建物-築年月: | 物件番号:空き家バンク物件 D-139:畑付き古民家 

空き家バンク【売買】50万円 岡山県久米郡美咲町東垪和 大正14年築 畑・山林・物置・屋根裏収納付き5部屋平屋古民家 土間有

売買価格:50万円 | 賃貸価格: | 5部屋 | 建物-面積:118.77 ㎡ | 土地-面積:328.53 ㎡ 畑323㎡、山林674㎡ | 建物-築年月:1925年 | 物件番号:空き家バンク物件 MA026

空き家バンク【売買】150万円 山口県下関市豊北町大字阿川 海浜公園徒歩3分・大正15年築 駐車場5台付き7DK2階建古民家

売買価格:150万円 | 賃貸価格: | 7DK | 建物-面積:169.32㎡ | 土地-面積:457.29㎡ | 建物-築年月:大正15年 | 物件番号:空き家バンク物件 225

空き家バンク【売買】300万円 宮崎県都城市山之口町山之口 広い敷地・大正12年築 駐車場数台付き6DK平屋古民家 土間・回り縁・続き間有

売買価格:300万円 | 賃貸価格: | 6DK | 建物-面積:198.96㎡ | 土地-面積:1388.09㎡ | 建物-築年月:大正12年 | 物件番号:空き家バンク物件 364

(価格変更)空き家バンク【売買】100万円→50万円 長野県南佐久郡佐久穂町大字畑 大正5年築 農地・山林・庭・古小屋・駐車場2台付き4K2階建古民家 囲炉裏有

売買価格:50万円 | 賃貸価格: | 4K | 建物-面積:184.46㎡ | 土地-面積:531.19㎡ | 建物-築年月:大正5年 | 物件番号:空き家バンク物件 69

投稿ナビゲーション

← 過去の投稿
新しい投稿 →

地域別

検索

お役立ちページ

  • お気に入り物件リスト
  • 当サイトの使い方
  • (旧)変更・削除申込
  • 無料掲載方法

お役立ちリンク

  • 全国の頑張っている方々

空き家バンク・リンク


当サイトのご利用方法 | 運営 | プライバシーポリシー | 事業者登録 | 事業者ログイン
(C) Sumai事務局