(古民家)昭和築 - Sumai空き家 - Page 4

掲載空き家3,125件

地域選択

コンテンツへ移動
  • お気に入り物件リスト
  • 当サイトの使い方
  • (旧)変更・削除申込
  • 無料掲載方法

Sumai空き家

全国の空き家・古民家物件を地域別・条件別に検索できます

Sumai空き家 > (古民家)昭和築

(古民家)昭和築

<< 1 … 3 4 5 … 87 >>

空き家バンク【売買】30万円 兵庫県神崎郡福崎町西治 庭・物置・駐車場付き8部屋2階建古民家

売買価格:30万円 | 賃貸価格: | 8部屋 | 建物-面積:201.02㎡ | 土地-面積:453.00㎡ | 建物-築年月:昭和47年 | 物件番号:空き家バンク物件 70

空き家バンク【売買】200万円 福島県白河市泉田池ノ上 庭・物置・駐車場付き4DK平屋古民家 水洗トイレ 回り縁・続き間有

売買価格:200万円 | 賃貸価格: | 4DK | 建物-面積:100.47㎡ | 土地-面積:436.97㎡ | 建物-築年月:昭和25年 | 物件番号:空き家バンク物件 178

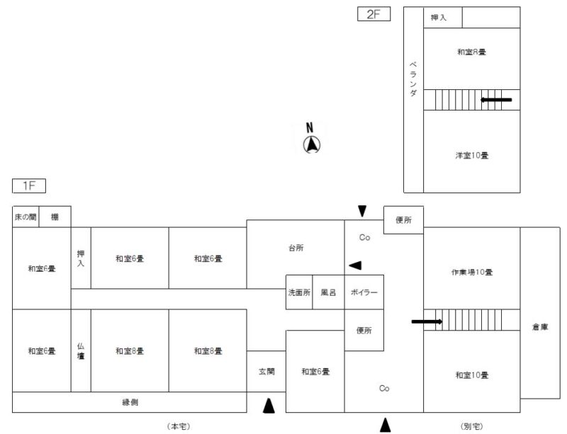
空き家バンク【売買】60万円 山形県西村山郡大江町本郷地区 補修不要 小屋・車庫2棟・駐車場付き6DK2階建古民家

売買価格:60万円 | 賃貸価格: | 6DK | 建物-面積:158.99㎡ 小屋1F:37.26㎡、2F:37.26㎡、車庫:19.87㎡ | 土地-面積:234.78㎡ | 建物-築年月:昭和51年 | 物件番号:空き家バンク物件 R-76

空き家バンク【売買】10万円 岩手県陸前高田市広田町袖野 海岸に近い・自然豊かな場所・家庭菜園可 駐車場付き6DK2階建古民家  広縁・続き間・掘りごたつ有

売買価格:10万円 | 賃貸価格: | 6DK | 建物-面積:137.35㎡ | 土地-面積:378.12㎡ | 建物-築年月:1977年(昭和52年) | 物件番号:空き家バンク物件 056

空き家バンク【売買】130万円 福岡県八女市上陽町北川内 全面リフォーム済・井戸有 農地・倉庫・駐車場付き4Kコンパクト2階建古民家

売買価格:130万円 | 賃貸価格: | 4K | 建物-面積:77.97㎡ | 土地-面積:宅地:128.26㎡ 農地:1125㎡ | 建物-築年月:昭和26年(1951年) | 物件番号:空き家バンク物件 240

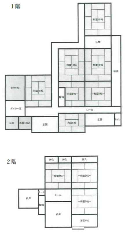
空き家バンク【売買】10万円 広島県山県郡北広島町長笹 築100年以上・前面除雪道 庭・土蔵・併設納屋・駐車場2台付き6SDK2階建古民家 井戸・回り縁・続き間有

売買価格:10万円 | 賃貸価格: | 6SDK | 建物-面積:313.0 ㎡ | 土地-面積:486.50㎡ | 建物-築年月:昭和7年 | 物件番号:空き家バンク物件 537

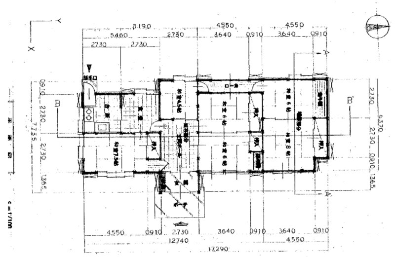
空き家バンク【売買】95万円 愛知県豊田市長沢町 倉庫・工場・駐車場付き6K2階建古民家 井戸・縁側・薪風呂有

売買価格:95万円 | 賃貸価格: | 6K | 建物-面積:287.87㎡ | 土地-面積:504.71㎡ | 建物-築年月:昭和22年 | 物件番号:空き家バンク物件 松平-21

(交渉中)空き家バンク【売買】70万円 奈良県吉野郡吉野町河原屋 通学便利 畑・バルコニー付き6DK2階建古民家 水洗トイレ

売買価格:70万円 | 賃貸価格: | 6DK | 建物-面積:153.62㎡ | 土地-面積:114.04㎡ | 建物-築年月:昭和37年 | 物件番号:空き家バンク物件 Y224

空き家バンク【売買】150万円(応相談)京都府福知山市大江町千原 由良川を望む 蔵・駐車場2台付き6DK2階建古民家 水洗トイレ

売買価格:150万円(応相談) | 賃貸価格: | 6DK | 建物-面積:160.01㎡ | 土地-面積:326.88㎡ | 建物-築年月:昭和47年 | 物件番号:空き家バンク物件 476

空き家バンク【売買】150万円 青森県北津軽郡鶴田町大字横萢矢留崎 広い敷地 隣接畑・庭・物置・車庫付き8K平屋古民家 農集排 回り土間有

売買価格:150万円 | 賃貸価格: | 8K | 建物-面積:108.26㎡ | 土地-面積:宅地 1653.42㎡  畑 2120.00㎡ | 建物-築年月:昭和38年 | 物件番号:空き家バンク物件 244

投稿ナビゲーション

← 過去の投稿
新しい投稿 →

地域別

検索

お役立ちページ

  • お気に入り物件リスト
  • 当サイトの使い方
  • (旧)変更・削除申込
  • 無料掲載方法

お役立ちリンク

  • 全国の頑張っている方々

空き家バンク・リンク




当サイトのご利用方法 | 運営 | プライバシーポリシー | 事業者登録 | 事業者ログイン
(C) Sumai事務局