(生活環境)生活便利 - Sumai空き家 - Page 2

掲載空き家3,125件

地域選択

コンテンツへ移動
  • お気に入り物件リスト
  • 当サイトの使い方
  • (旧)変更・削除申込
  • 無料掲載方法

Sumai空き家

全国の空き家・古民家物件を地域別・条件別に検索できます

Sumai空き家 > (生活環境)生活便利

(生活環境)生活便利

<< 1 2 3 … 20 >>

空き家バンク【売買】80万円 茨城県石岡市府中三丁目 駅徒歩圏内・生活便利・玄関から続く広縁有 庭付き6DK2階建 上下水道

売買価格:80万円 | 賃貸価格: | 6KK | 建物-面積:108.15㎡ | 土地-面積:278.51㎡ | 建物-築年月:昭和38年5月15日 | 物件番号:空き家バンク物件 58

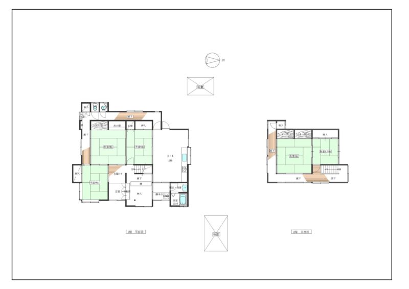
空き家バンク【売買】130万円 滋賀県犬上郡甲良町 生活便利 小屋・屋根裏収納付き6部屋2階建古民家 上下水道 土間・縁側・続き間有

売買価格:130万円 | 賃貸価格: | 6部屋 | 建物-面積:1F89.98㎡ 2F39.99㎡ 延べ129.97㎡ | 土地-面積:約234.71㎡ 約70.99坪 | 建物-築年月:1970年 | 物件番号:空き家バンク物件 20251201-3

空き家バンク【売買】200万円 福井県大野市陽明町1丁目 生活便利・街中広い敷地 補修不要・水周りリフォーム済 車庫・サンルーム2箇所付き6LDK2階建

売買価格:200万円 | 賃貸価格: | 6LDK | 建物-面積:1階86.89㎡ 2階49.72㎡ | 土地-面積:988.42㎡ | 建物-築年月:昭和52年 | 物件番号:空き家バンク物件 147

空き家バンク【売買】380万円 秋田県由利本荘市東由利老方 生活便利・温泉近い・広い敷地 物置兼作業場・駐車場6台付き8DK2階建 水洗トイレ

売買価格:380万円 | 賃貸価格: | 8DK | 建物-面積:259.35㎡ | 土地-面積:1346.29㎡ | 建物-築年月:昭和53年 | 物件番号:空き家バンク物件 R08-01

空き家バンク【売買】50万円 静岡県島田市川根町家山 駅近く・生活便利 ベランダ付き6DK2階建 水洗トイレ

売買価格:50万円 | 賃貸価格: | 6DK | 建物-面積:71.28㎡ | 土地-面積:51.83㎡ | 建物-築年月:築60年 | 物件番号:空き家バンク物件 Z00051

(内覧中)空き家バンク【売買】500万円 奈良県北葛城郡上牧町上牧 駅徒歩圏内・生活便利 別棟・隣接宅地・ベランダ・駐車場5台付き11DK2階建古民家 水洗トイレ

売買価格:500万円 | 賃貸価格: | 11DK | 建物-面積:236.84㎡ | 土地-面積:416.52㎡ | 建物-築年月:不詳 | 物件番号:空き家バンク物件 764

空き家バンク【売買】100万円 富山県下新川郡入善町入善 平成2年築・生活便利・カウンター有 店舗スペース・駐車場5台付き平屋 上下水道

売買価格:100万円 | 賃貸価格: | | 建物-面積:約70.21㎡ | 土地-面積:約190.67㎡ | 建物-築年月:平成2年 | 物件番号:空き家バンク物件 369

(交渉中)空き家バンク【売買】180万円 富山県小矢部市西町 駅徒歩圏内・生活通学便利 ベランダ・駐車場付き2階建

売買価格:180万円 | 賃貸価格: | 1階2部屋 2階は未確認 | 建物-面積:91.92㎡ | 土地-面積:109.09㎡ | 建物-築年月: | 物件番号:空き家バンク物件 334

空き家バンク【売買】598万円 群馬県利根郡片品村鎌田 村中心部・生活便利・日当り良好 畑・庭・別棟平屋・倉庫・駐車場2台付き2DKコンパクト平屋 掘りごたつ有

売買価格:598万円 | 賃貸価格: | 2DK | 建物-面積:41.71㎡ | 土地-面積:528㎡ | 建物-築年月:築32年 | 物件番号:空き家バンク物件 18

(交渉中)空き家バンク【売買】100万円 新潟県糸魚川市竹ケ花 駅・海徒歩圏内 生活便利 駐車場3台付き5DK2階建 上下水道

売買価格:100万円 | 賃貸価格: | 5DK | 建物-面積:152.56㎡ | 土地-面積:295.19㎡ | 建物-築年月:昭和63年6月 | 物件番号:空き家バンク物件 糸ー283

投稿ナビゲーション

← 過去の投稿
新しい投稿 →

地域別

検索

お役立ちページ

  • お気に入り物件リスト
  • 当サイトの使い方
  • (旧)変更・削除申込
  • 無料掲載方法

お役立ちリンク

  • 全国の頑張っている方々

空き家バンク・リンク




当サイトのご利用方法 | 運営 | プライバシーポリシー | 事業者登録 | 事業者ログイン
(C) Sumai事務局