| 物件種別 | 売買(建物・土地) | ||
| 売買価格 | 150万円 | ||
| 賃貸価格 | |||
| 物件所在地 | |||
| 建物-構造 | 建物-築年月 | 昭和43年 | |
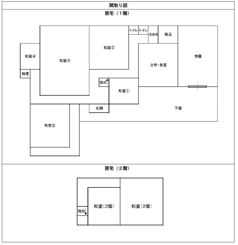
| 建物-面積 | 108.24㎡ | 建物-間取 | |
| 土地-面積 | 293.19㎡ | 土地-地目 | |
| 土地-用途地域 | 土地-都市計画 | ||
| 土地-接道 | 土地-権利 | ||
| 駐車場 | 2台 | ||
| 交通 | 駅車5分 IC車10分 | ||
| 生活環境 | 役所車5分 診療所車5分 スーパー車3分 | ||
| 設備-電気 | 電気 | 設備-給湯 | プロパンガス, 灯油 |
| 設備-水道 | 設備-排水 | 汲み取り | |
| 設備-トイレ | |||
| 増築・リフォーム歴 | 増築あり | ||
| 補修必要程度 | 補修費負担 | ||
| 補修必要内容 | |||
| 利用状況・空き家歴 | き家になった年 平成3年 | ||
| 付帯物件・その他 | 物置 | ||
| 管理費・自治会費・税金等 | |||
| 敷金・礼金・仲介手数料等 | |||
| 特記事項 | |||
| 備考 | ※下記空き家バンクURLより、物件確認とお問合せをお願いいたします。 |
||
| 参照URL | 自治体ホームページ | ||
| 物件番号 | 空き家バンク物件 59 物件詳細(PDF) | ||
| 取引態様 | |||
| 事業者名 | |||
| 掲載日/更新日 | 2026年2月3日 | 2026年2月3日 | |
| 直通メールフォーム | |||
![]()




