空き家バンク【売買】150万円 山口県周南市八代 自然豊かな場所・眺望良好・水周りリフォーム済 田畑・山林・シャッター倉庫・駐車場2~3台付き6DK2階建 井戸・水洗トイレ

物件種別 売買(建物・土地)
売買価格 150万円
賃貸価格
物件所在地 山口県周南市八代
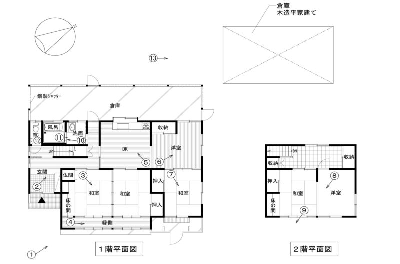
建物-構造 木造2階建 建物-築年月 昭和52年
建物-面積 170.05㎡ 建物-間取 6DK
土地-面積 704.59㎡ 田・畑(160.00㎡) 土地-地目
土地-用途地域   土地-都市計画  
土地-接道 土地-権利  
駐車場 2~3台
交通 熊毛ICより約10.2㎞(車で約21分)JR岩徳線 高水駅より約8.4km(車で約17分)防長交通バス 下魚切バス停より約557m(徒歩で約10分)
生活環境 八代小学校:約1.4㎞、熊毛中学校:約9.2㎞
設備-電気 設備-給湯 プロパンガス
設備-水道 井戸 設備-排水 浄化槽
設備-トイレ 洋式水洗トイレ
増築・リフォーム歴 風呂・トイレ・洗面・キッチン・フローリング リフォーム済 令和6年に敷地内進入路をコンクリート舗装済み
補修必要程度 補修費負担
補修必要内容
利用状況 空き家になった時期 平成14年3月 空き家になった後も周1回程度手入れをしている
付帯物件・その他 田, 畑, 山林, 倉庫
管理費・自治会費・税金等
敷金・礼金・仲介手数料等
特記事項 家具家電については応相談 土砂災害警戒区域
備考

※下記空き家バンクURLより、物件確認とお問合せをお願いいたします。

参照URL 自治体ホームページ
物件番号 空き家バンク物件 236
取引態様  
事業者名
事業者所在地
事業者連絡先
掲載日/更新日 2026年2月7日 2026年2月7日 [futureaction type="date"]
直通メールフォーム

Loading