| 物件種別 | 売買(建物・土地) | ||
| 売買価格 | 100万円 | ||
| 賃貸価格 | |||
| 物件所在地 | 富山県下新川郡朝日町沼保 | ||
| 建物-構造 | 木造2階建 | 建物-築年月 | 昭和37年 |
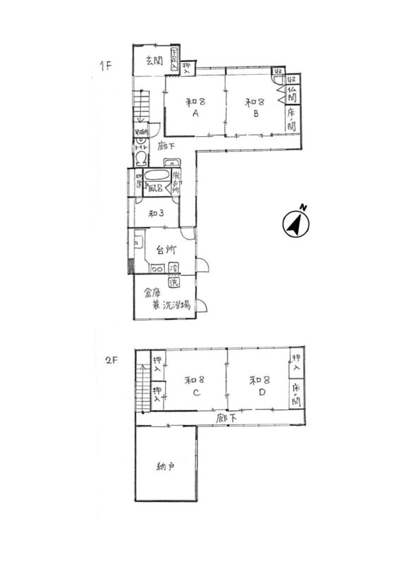
| 建物-面積 | 1階79.33㎡ 2階47.93㎡ | 建物-間取 | |
| 土地-面積 | 318.25㎡ | 土地-地目 | |
| 土地-用途地域 | 土地-都市計画 | ||
| 土地-接道 | 土地-権利 | ||
| 駐車場 | 2台 | ||
| 交通 | 駅0.8km | ||
| 生活環境 | 役所1.4km 病院0.5km スーパー1km コンビニ1.3km 保育園0.3km 小学校0.5km 中学校1.9km | ||
| 設備-電気 | 電気 | 設備-給湯 | プロパンガス, 電気温水器 |
| 設備-水道 | 井戸 | 設備-排水 | 公共下水道 |
| 設備-トイレ | 洋式水洗トイレ | ||
| 増築・リフォーム歴 | |||
| 補修必要程度 | 中規模 | 補修費負担 | |
| 補修必要内容 | |||
| 利用状況・空き家歴 | 空き家になった時期 平成26年1月頃 | ||
| 付帯物件・その他 | 庭, 倉庫 | ||
| 管理費・自治会費・税金等 | |||
| 敷金・礼金・仲介手数料等 | |||
| 特記事項 | |||
| 備考 | ※下記空き家バンクURLより、物件確認とお問合せをお願いいたします。 |
||
| 参照URL | 自治体ホームページ | ||
| 物件番号 | 空き家バンク物件 326 物件詳細(PDF) | ||
| 取引態様 | |||
| 取扱事業者(お問合せ先) | |||
| 掲載日/更新日 | 2026年2月10日 | 2026年2月10日 | |
| 直通メールフォーム | |||
![]()








