空き家バンク【売買】550万円 福岡県八女市上陽町北川内 農地・倉庫・駐車場2台付き4DK平屋古民家 庭園を見渡す広縁・続き間有

物件種別 売買(建物・土地)
売買価格 550万円
賃貸価格
物件所在地 福岡県八女市上陽町北川内
建物-構造 木造平屋 建物-築年月 昭和44年
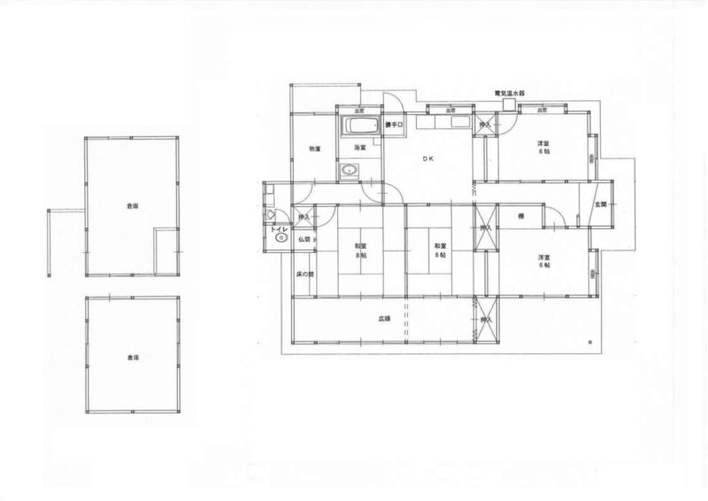
建物-面積 115.66㎡ 建物-間取 4DK
土地-面積 584.27㎡ 農地641㎡ 土地-地目
土地-用途地域   土地-都市計画  
土地-接道 土地-権利  
駐車場 2台
交通 バス停0.4km
生活環境 役所0.4km 診療所0.1km スーパー4.3km 小学校0.7km 中学校0.7km
設備-電気 電気 設備-給湯 エコキュート
設備-水道 公営水道 設備-排水 汲み取り
設備-トイレ 洋式簡易水洗トイレ
増築・リフォーム歴
補修必要程度 補修費負担
補修必要内容
利用状況・空き家歴 空き家になった時期 令和7年(2025年)
付帯物件・その他 農地, 庭, 倉庫, 縁側
管理費・自治会費・税金等
敷金・礼金・仲介手数料等
特記事項 急傾斜地の崩壊(土砂災害警戒区域)
備考

上陽町中心エリアに位置する平屋物件。立派な庭もあり、縁側から景色を楽しめます。

・倉庫が2つあり、収納も充実しています。
・物件南側が広く、庭園スペースとして楽しめます。
・物件前道路へ進入する道が少し狭いです。
・近隣に農地(641平方メートル)があり、セットでの売却になっております。
(農地法に基づく許可申請の手続きが必要となります。)
・水道、ガス、電気などは、使用可能か専門業者などによる事前確認が必要です。
ボイラーや給湯器、井戸ポンプなどの設備関係につきましては、交換が必要になる場合が多いです。

※下記空き家バンクURLより、物件確認とお問合せをお願いいたします。

参照URL 自治体ホームページ
物件番号 空き家バンク物件 236
取引態様  
事業者名
掲載日/更新日 2026年2月23日 2026年2月23日 [futureaction type="date"]
直通メールフォーム

Loading