| 物件種別 | 売買(建物・土地) | ||
| 売買価格 | 200万円 | ||
| 賃貸価格 | |||
| 物件所在地 | 三重県 松阪市飯南町粥見 | ||
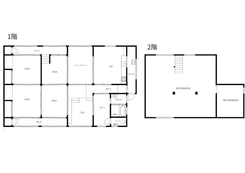
| 建物-構造 | 木造平屋 | 建物-築年月 | 1956年 |
| 建物-面積 | 建物-間取 | 5LK | |
| 土地-面積 | 407.64㎡ | 土地-地目 | 宅地 |
| 土地-用途地域 | 土地-都市計画 | ||
| 土地-接道 | 土地-権利 | ||
| 駐車場 | 青空2台 | ||
| 交通 | 駅20km バス停0.05km | ||
| 生活環境 | 役所1.5km 病院25km 診療所5.7km 歯科1.5km スーパー2km 保育園1.5km 小学校1.6km 中学校0.5km ホームセンター2km | ||
| 設備-電気 | 電気 | 設備-給湯 | 灯油 |
| 設備-水道 | 公営水道 | 設備-排水 | 合併浄化槽 |
| 設備-トイレ | |||
| 増築・リフォーム歴 | |||
| 補修必要程度 | 中規模 | 補修費負担 | 入居者 |
| 補修必要内容 | |||
| 利用状況・空き家歴 | 時々利用 年12回 | ||
| 付帯物件・その他 | 畑, 縁側, 屋根裏収納 | ||
| 管理費・自治会費・税金等 | |||
| 敷金・礼金・仲介手数料等 | 宅地建物取引業者への仲介 希望する | ||
| 特記事項 | |||
| 備考 | シロアリ被害 無 ※下記空き家バンクURLより、物件確認とお問合せをお願いいたします。 |
||
| 参照URL | 自治体ホームページ | ||
| 物件番号 | 空き家バンク物件 196 | ||
| 取引態様 | |||
| 事業者名 | |||
| 掲載日/更新日 | 2026年2月27日 | 2026年2月27日 | |
| 直通メールフォーム | |||
![]()



















