| 物件種別 | 売買(建物・土地) | ||
| 売買価格 | 250万円 | ||
| 賃貸価格 | |||
| 物件所在地 | 島根県浜田市金城町下来原1111-18 | ||
| 建物-構造 | 木造2階建 | 建物-築年月 | 昭和63年 |
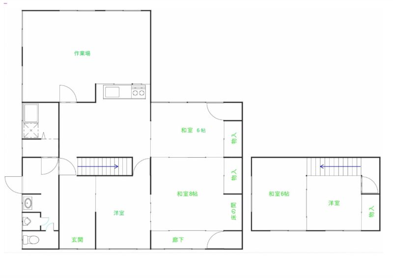
| 建物-面積 | 122.17㎡ | 建物-間取 | 5DK+作業場 |
| 土地-面積 | 421.74㎡ | 土地-地目 | |
| 土地-用途地域 | 土地-都市計画 | ||
| 土地-接道 | 土地-権利 | ||
| 駐車場 | 屋根無し3台 | ||
| 交通 | 駅11.3km IC2.4km | ||
| 生活環境 | 役所2.7km 診療所3km スーパー2.8km 保育園2.4km 小学校2.2km 中学校1.4km | ||
| 設備-電気 | 設備-給湯 | プロパンガス | |
| 設備-水道 | 公営水道 | 設備-排水 | 汲み取り |
| 設備-トイレ | 洋式トイレ | ||
| 増築・リフォーム歴 | |||
| 補修必要程度 | 補修費負担 | 入居者 | |
| 補修必要内容 | 一部修理必要 | ||
| 利用状況・空き家歴 | |||
| 付帯物件・その他 | 物置, 作業場 | ||
| 管理費・自治会費・税金等 | |||
| 敷金・礼金・仲介手数料等 | |||
| 特記事項 | 家財道具 有,所有者にて処分 土砂災害警戒地域 該当なし | ||
| 備考 | ・既存建物状況調査 未済 ※下記空き家バンクURLより、物件確認とお問合せをお願いいたします。 |
||
| 参照URL | 自治体ホームページ | ||
| 物件番号 | 空き家バンク物件 金城-79 | ||
| 取引態様 | |||
| 取扱事業者(お問合せ先) | |||
| 掲載日/更新日 | 2026年3月9日 | 2026年3月9日 | |
| 直通メールフォーム | |||
![]()

