| 物件種別 | 売買(建物・土地) | ||
| 売買価格 | 180万円 | ||
| 賃貸価格 | |||
| 物件所在地 | 秋田県由利本荘市松ヶ崎 | ||
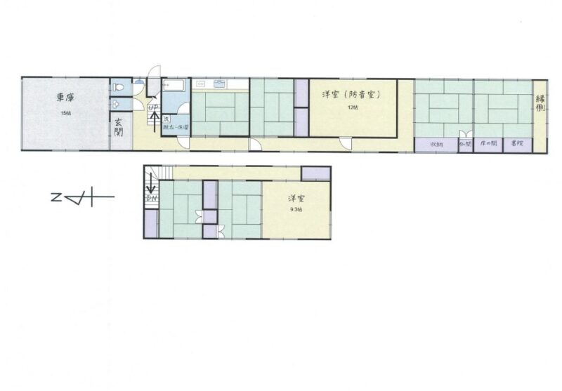
| 建物-構造 | 木造2階建 | 建物-築年月 | 不詳 |
| 建物-面積 | 198.34㎡ | 建物-間取 | 7K |
| 土地-面積 | 221.48㎡ | 土地-地目 | |
| 土地-用途地域 | 土地-都市計画 | ||
| 土地-接道 | 土地-権利 | ||
| 駐車場 | 有 | ||
| 交通 | 駅1.5km バス停0.12km | ||
| 生活環境 | 役所5.8km 病院0.8km スーパー3.7km コンビニ4.9km 保育園3.7km 小学校2.7km 中学校3.7km | ||
| 設備-電気 | 電気 | 設備-給湯 | ガス, 灯油 |
| 設備-水道 | 公営水道 | 設備-排水 | |
| 設備-トイレ | 洋式水洗トイレ | ||
| 増築・リフォーム歴 | |||
| 補修必要程度 | 補修費負担 | ||
| 補修必要内容 | |||
| 利用状況・空き家歴 | 空き家となった時期 平成24年4月 | ||
| 付帯物件・その他 | 縁側 | ||
| 管理費・自治会費・税金等 | |||
| 敷金・礼金・仲介手数料等 | |||
| 特記事項 | 防音室有 | ||
| 備考 | 海の近くに暮らし、好きな音に浸る時間を大切にしたい方へ。 ※下記空き家バンクURLより、物件確認とお問合せをお願いいたします。 |
||
| 参照URL | 自治体ホームページ | ||
| 物件番号 | 空き家バンク物件 R07-22 | ||
| 取引態様 | |||
| 取扱事業者(お問合せ先) | 株式会社サンタクマ |
||
| 掲載日/更新日 | 2026年4月3日 | 2026年4月3日 | |
| 直通メールフォーム | |||
![]()

















