| 物件種別 | 売買(建物・土地) | ||
| 売買価格 | 250万円 | ||
| 賃貸価格 | |||
| 物件所在地 | 和歌山県東牟婁郡串本町串本 | ||
| 建物-構造 | RC2階建 | 建物-築年月 | 不詳 |
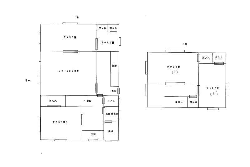
| 建物-面積 | 99.79㎡ | 建物-間取 | 6部屋 |
| 土地-面積 | 216.13㎡ | 土地-地目 | |
| 土地-用途地域 | 土地-都市計画 | ||
| 土地-接道 | 土地-権利 | ||
| 駐車場 | 有 | ||
| 交通 | 串本駅 距離1.2㎞ | ||
| 生活環境 | 総合病院:2.5km / 保育園:2.5km / 小学校:0.6km / 中学校:0.6km / スーパー:0.7km / コンビニ:0.3km | ||
| 設備-電気 | 電気 | 設備-給湯 | プロパンガス |
| 設備-水道 | 公営水道 | 設備-排水 | 公共下水道 |
| 設備-トイレ | 洋式水洗トイレ | ||
| 増築・リフォーム歴 | |||
| 補修必要程度 | 補修費負担 | ||
| 補修必要内容 | |||
| 利用状況・空き家歴 | |||
| 付帯物件・その他 | 庭, 物置 | ||
| 管理費・自治会費・税金等 | |||
| 敷金・礼金・仲介手数料等 | |||
| 特記事項 | |||
| 備考 | 市街地周辺の一軒家で駐車場有。スーパー、コンビニ、飲食店等も徒歩圏内。 物置が未登記。玄関付近の天井にシミ有。 ※下記空き家バンクURLより、物件確認とお問合せをお願いいたします。 |
||
| 参照URL | 自治体ホームページ | ||
| 物件番号 | 空き家バンク物件 A-1612 | ||
| 取引態様 | |||
| 取扱事業者(お問合せ先) | |||
| 掲載日/更新日 | 2026年4月23日 | 2026年4月23日 | |
| 直通メールフォーム | |||
![]()



















