| 物件種別 | 売買(建物・土地) | ||
| 売買価格 | 10万円 | ||
| 賃貸価格 | |||
| 物件所在地 | 広島県山県郡北広島町長笹 | ||
| 建物-構造 | 建物-築年月 | 昭和7年 | |
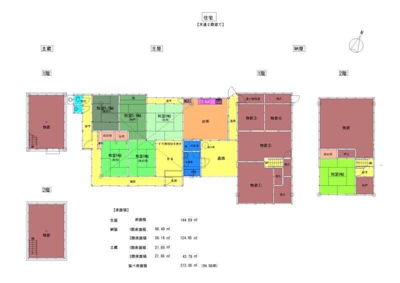
| 建物-面積 | 313.0 ㎡ | 建物-間取 | 6SDK |
| 土地-面積 | 486.50㎡ | 土地-地目 | |
| 土地-用途地域 | 土地-都市計画 | ||
| 土地-接道 | 接道:除雪あり | 土地-権利 | |
| 駐車場 | 2台 | ||
| 交通 | バス停0.28km IC21km | ||
| 生活環境 | 病院9.9km 郵便局10.1km スーパー20.5km コンビニ11.1km ドラッグストア19.2km ホームセンター22km こども園4.7km 小学校7.2km 中学校7.2km | ||
| 設備-電気 | 設備-給湯 | 電気温水器 | |
| 設備-水道 | 井戸 | 設備-排水 | 汲み取り |
| 設備-トイレ | 洋式トイレ | ||
| 増築・リフォーム歴 | |||
| 補修必要程度 | 補修費負担 | ||
| 補修必要内容 | |||
| 利用状況・空き家歴 | 空き家になった時期 平成18年 | ||
| 付帯物件・その他 | 庭, 納屋, 蔵, 縁側 | ||
| 管理費・自治会費・税金等 | |||
| 敷金・礼金・仲介手数料等 | |||
| 特記事項 | |||
| 備考 | 築100年以上が経過した大きな建物!リノベーションしたい方に! おすすめのポイント 契約上の注意点 その他・備考 都市計画区域外/土砂災害警戒内 ※下記空き家バンクURLより、物件確認とお問合せをお願いいたします。 |
||
| 参照URL | 自治体ホームページ | ||
| 物件番号 | 空き家バンク物件 537 | ||
| 取引態様 | |||
| 取扱事業者(お問合せ先) | |||
| 掲載日/更新日 | 2026年4月14日 | 2026年5月12日 | |
| 直通メールフォーム | |||
![]()




