| 物件種別 | 売買(建物・土地) | ||
| 売買価格 | 130万円 | ||
| 賃貸価格 | |||
| 物件所在地 | 福岡県八女市上陽町北川内 | ||
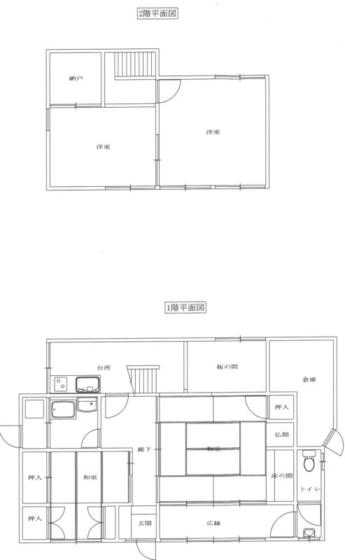
| 建物-構造 | 木造2階建 | 建物-築年月 | 昭和26年(1951年) |
| 建物-面積 | 77.97㎡ | 建物-間取 | 4K |
| 土地-面積 | 宅地:128.26㎡ 農地:1125㎡ | 土地-地目 | |
| 土地-用途地域 | 土地-都市計画 | ||
| 土地-接道 | 土地-権利 | ||
| 駐車場 | 1台 | ||
| 交通 | バス停0.5km | ||
| 生活環境 | 役所0.7km 病院8.9km スーパー4.7km 小学校0.9km 中学校0.9km | ||
| 設備-電気 | 電気 | 設備-給湯 | 電気温水器 |
| 設備-水道 | 井戸 | 設備-排水 | 汲み取り |
| 設備-トイレ | 洋式トイレ | ||
| 増築・リフォーム歴 | |||
| 補修必要程度 | 小規模 | 補修費負担 | |
| 補修必要内容 | 軽微な修繕 現状渡 | ||
| 利用状況・空き家歴 | 空き家になった時期 令和元年(2019年) | ||
| 付帯物件・その他 | 農地, 倉庫 | ||
| 管理費・自治会費・税金等 | |||
| 敷金・礼金・仲介手数料等 | |||
| 特記事項 | 浸水想定区域 0.5m~3.0m未満 | ||
| 備考 | 上陽町中心部にほど近い、閑静な住環境に位置する物件です。 ・平成18年頃にほぼ全面的な増改築リフォームが実施されており、屋根瓦や内部床、建具等の状態は比較的良好です。 ※下記空き家バンクURLより、物件確認とお問合せをお願いいたします。 |
||
| 参照URL | 自治体ホームページ | ||
| 物件番号 | 空き家バンク物件 240 | ||
| 取引態様 | |||
| 取扱事業者(お問合せ先) | |||
| 掲載日/更新日 | 2026年4月15日 | 2026年5月8日 | |
| 直通メールフォーム | |||
![]()



















