| 物件種別 | 売買(建物・土地) | ||
| 売買価格 | 100万円 | ||
| 賃貸価格 | |||
| 物件所在地 | 山梨県西八代郡市川三郷町下大鳥居 | ||
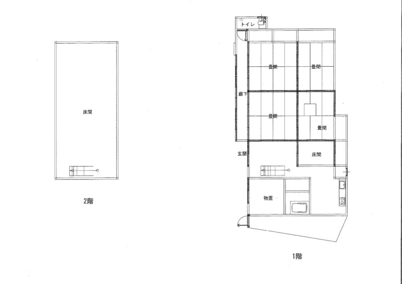
| 建物-構造 | 木造2階建 | 建物-築年月 | 昭和25年 |
| 建物-面積 | 1階108.94㎡ 2階49.68㎡ | 建物-間取 | 4部屋 |
| 土地-面積 | 397.12㎡ | 土地-地目 | |
| 土地-用途地域 | 土地-都市計画 | ||
| 土地-接道 | 土地-権利 | ||
| 駐車場 | 2台 | ||
| 交通 | 駅1.7km | ||
| 生活環境 | 役所3km 病院1.5km スーパー2km コンビニ0.3km ホームセンター2km 保育園0.8km 小学校2.2km 中学校2.5km | ||
| 設備-電気 | 設備-給湯 | ||
| 設備-水道 | 設備-排水 | ||
| 設備-トイレ | |||
| 増築・リフォーム歴 | |||
| 補修必要程度 | 大規模 | 補修費負担 | 入居者 |
| 補修必要内容 | |||
| 利用状況・空き家歴 | 放置6ヶ月 | ||
| 付帯物件・その他 | 庭, 物置, 縁側, 掘りごたつ | ||
| 管理費・自治会費・税金等 | |||
| 敷金・礼金・仲介手数料等 | |||
| 特記事項 | |||
| 備考 | 古民家としての活用が可能です。 ※下記空き家バンクURLより、物件確認とお問合せをお願いいたします。 |
||
| 参照URL | 自治体ホームページ | ||
| 物件番号 | 空き家バンク物件 129 | ||
| 取引態様 | |||
| 取扱事業者(お問合せ先) | |||
| 掲載日/更新日 | 2026年4月24日 | 2026年4月24日 | |
| 直通メールフォーム | |||
![]()



