| 物件種別 | 売買(建物・土地) | ||
| 売買価格 | 180万円 | ||
| 賃貸価格 | |||
| 物件所在地 | 京都府綴喜郡宇治田原町大字禅定寺小字東奥谷30番地2 | ||
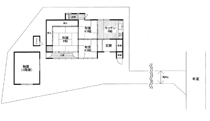
| 建物-構造 | 木造平屋 | 建物-築年月 | 不詳 |
| 建物-面積 | 72㎡ | 建物-間取 | 3DK |
| 土地-面積 | 303㎡ | 土地-地目 | |
| 土地-用途地域 | 土地-都市計画 | ||
| 土地-接道 | 土地-権利 | ||
| 駐車場 | 有 | ||
| 交通 | |||
| 生活環境 | |||
| 設備-電気 | 電気 | 設備-給湯 | ガス |
| 設備-水道 | 公営水道 | 設備-排水 | 汲み取り |
| 設備-トイレ | 和式トイレ | ||
| 増築・リフォーム歴 | |||
| 補修必要程度 | 大規模 | 補修費負担 | 入居者 |
| 補修必要内容 | |||
| 利用状況・空き家歴 | 平成31年から空家 | ||
| 付帯物件・その他 | 物置 | ||
| 管理費・自治会費・税金等 | |||
| 敷金・礼金・仲介手数料等 | |||
| 特記事項 | |||
| 備考 | ・現状渡し・通路部分が約27mあるため再建築不可・売主の契約不適合責任(保証)なし ※下記空き家バンクURLより、物件確認とお問合せをお願いいたします。 |
||
| 参照URL | 自治体ホームページ | ||
| 物件番号 | 空き家バンク物件 24 | ||
| 取引態様 | |||
| 取扱事業者(お問合せ先) | |||
| 掲載日/更新日 | 2026年4月25日 | 2026年4月25日 | |
| 直通メールフォーム | |||
![]()







