| 物件種別 | 売買(建物・土地) | ||
| 売買価格 | (必要経費分のみ) | ||
| 賃貸価格 | |||
| 物件所在地 | 岩手県岩手郡雫石町鴬宿 | ||
| 建物-構造 | 木造平屋 | 建物-築年月 | 昭和48年 |
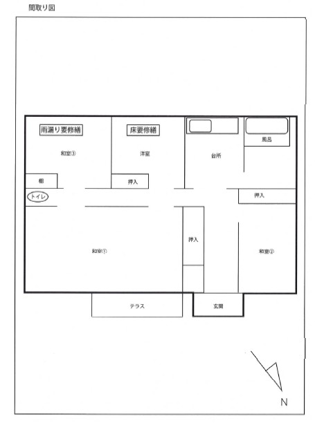
| 建物-面積 | 79.066㎡ | 建物-間取 | 4DK |
| 土地-面積 | 179.48 ㎡ | 土地-地目 | |
| 土地-用途地域 | 土地-都市計画 | ||
| 土地-接道 | 土地-権利 | ||
| 駐車場 | 1台 | ||
| 交通 | |||
| 生活環境 | スーパー、保育園まで車で9 分 広域公園まで車で10 分 | ||
| 設備-電気 | 設備-給湯 | プロパンガス | |
| 設備-水道 | 公営水道 | 設備-排水 | 汲み取り |
| 設備-トイレ | 洋式トイレ | ||
| 増築・リフォーム歴 | |||
| 補修必要程度 | 補修費負担 | ||
| 補修必要内容 | ・南東側の各部屋雨漏りある為修繕必要 ・南東側の中央洋室の床修繕必要 | ||
| 利用状況 | |||
| 付帯物件・その他 | |||
| 管理費・自治会費・税金等 | |||
| 敷金・礼金・仲介手数料等 | |||
| 特記事項 | |||
| 備考 | ・南東側の各部屋雨漏りある為修繕必要 ※下記空き家バンクURLより、物件確認とお問合せをお願いいたします。 |
||
| 参照URL | 自治体ホームページ | ||
| 物件番号 | 空き家バンク物件 79 | ||
| 取引態様 | |||
| 事業者名 | |||
| 事業者所在地 | |||
| 事業者連絡先 | |||
| 掲載日/更新日 | 2025年10月19日 | 2025年10月19日 | |
| 直通メールフォーム | |||
![]()





