| 物件種別 | 売買(建物・土地) | ||
| 売買価格 | 80万円 | ||
| 賃貸価格 | |||
| 物件所在地 | 青森県つがる市木造大畑朽葉30-3、30-11、30-15 | ||
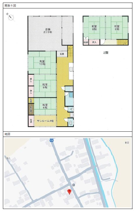
| 建物-構造 | 木造2階建 | 建物-築年月 | 昭和49年 |
| 建物-面積 | 1階125.55㎡ 2階33.00㎡ | 建物-間取 | 5部屋+店舗スペース |
| 土地-面積 | ㎡ | 土地-地目 | |
| 土地-用途地域 | 土地-都市計画 | ||
| 土地-接道 | 土地-権利 | ||
| 駐車場 | 無 | ||
| 交通 | 駅4.5km バス停0.03km | ||
| 生活環境 | 役所4km 病院4.5km スーパー4.1km コンビニ2.2km ホームセンター6.4km ドラッグストア3.7km 保育園0.4km 小学校0.3km 中学校4.1km | ||
| 設備-電気 | 電気 | 設備-給湯 | プロパンガス |
| 設備-水道 | 公営水道 | 設備-排水 | 汲み取り, 側溝 |
| 設備-トイレ | 和式トイレ | ||
| 増築・リフォーム歴 | |||
| 補修必要程度 | 大規模 | 補修費負担 | 入居者 |
| 補修必要内容 | |||
| 利用状況 | 空き家になって13年 | ||
| 付帯物件・その他 | 庭, 店舗スペース, サンルーム | ||
| 管理費・自治会費・税金等 | |||
| 敷金・礼金・仲介手数料等 | |||
| 特記事項 | 現況渡し | ||
| 備考 | ※下記空き家バンクURLより、物件確認とお問合せをお願いいたします。 |
||
| 参照URL | 自治体ホームページ | ||
| 物件番号 | 空き家バンク物件 231 物件詳細(PDF) | ||
| 取引態様 | |||
| 事業者名 | 株式会社RELIFE | ||
| 事業者所在地 | |||
| 事業者連絡先 | |||
| 掲載日/更新日 | 2025年12月18日 | 2025年12月18日 | |
| 直通メールフォーム | |||
![]()



