| 物件種別 | 売買(建物・土地) | ||
| 売買価格 | 300万円 | ||
| 賃貸価格 | |||
| 物件所在地 | 島根県浜田市旭町今市602-3 | ||
| 建物-構造 | 木造2階建 | 建物-築年月 | |
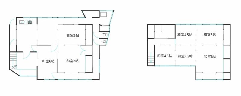
| 建物-面積 | 198.20㎡ | 建物-間取 | 8部屋 |
| 土地-面積 | 173.29㎡ | 土地-地目 | |
| 土地-用途地域 | 土地-都市計画 | ||
| 土地-接道 | 土地-権利 | ||
| 駐車場 | 屋根無し2 | ||
| 交通 | 駅20.3km IC1.6km | ||
| 生活環境 | 役所0.2km 診療所1.7km スーパー0.1km こども園2km 小学校1.2km 中学校0.9km | ||
| 設備-電気 | 設備-給湯 | プロパンガス | |
| 設備-水道 | 設備-排水 | 汲み取り | |
| 設備-トイレ | 洋式トイレ | ||
| 増築・リフォーム歴 | |||
| 補修必要程度 | 補修費負担 | 入居者 | |
| 補修必要内容 | 一部修理必要 | ||
| 利用状況 | |||
| 付帯物件・その他 | 物置, 縁側 | ||
| 管理費・自治会費・税金等 | |||
| 敷金・礼金・仲介手数料等 | |||
| 特記事項 | 土砂災害警戒地域 イエローゾーン | ||
| 備考 | 旭支所やスーパーに近い一軒家 ・既存建物状況調査 未済 ※下記空き家バンクURLより、物件確認とお問合せをお願いいたします。 |
||
| 参照URL | 自治体ホームページ | ||
| 物件番号 | 空き家バンク物件 旭-66 | ||
| 取引態様 | |||
| 事業者名 | |||
| 事業者所在地 | |||
| 事業者連絡先 | |||
| 掲載日/更新日 | 2025年12月17日 | 2025年12月17日 | |
| 直通メールフォーム | |||
![]()













