| 物件種別 | 売買(建物・土地) | ||
| 売買価格 | 320万円 | ||
| 賃貸価格 | |||
| 物件所在地 | 長野県飯山市大字緑 | ||
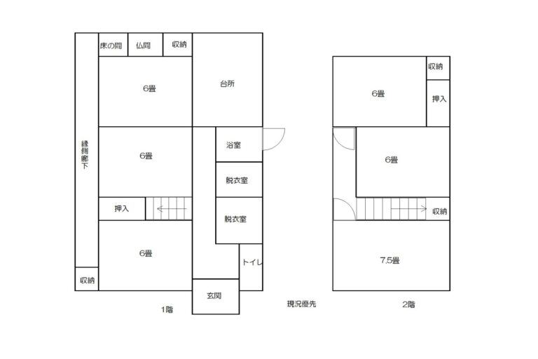
| 建物-構造 | 木造2階建 | 建物-築年月 | 昭和55年 |
| 建物-面積 | 1階75.27㎡ 2階41.40㎡ | 建物-間取 | 6DK |
| 土地-面積 | 616.26㎡ | 土地-地目 | |
| 土地-用途地域 | 土地-都市計画 | ||
| 土地-接道 | 土地-権利 | ||
| 駐車場 | |||
| 交通 | 駅3.9km バス停0.35km | ||
| 生活環境 | 役所4.9km 病院6km 保育園2km 小学校5km 中学校5km | ||
| 設備-電気 | 電気 | 設備-給湯 | プロパンガス, 灯油 |
| 設備-水道 | 公営水道 | 設備-排水 | 公共下水道 |
| 設備-トイレ | 洋式水洗トイレ | ||
| 増築・リフォーム歴 | |||
| 補修必要程度 | 中規模 | 補修費負担 | 入居者 |
| 補修必要内容 | |||
| 利用状況 | 空き家になった時期 令和4年 | ||
| 付帯物件・その他 | 田, 畑, 原野, 庭, 車庫 | ||
| 管理費・自治会費・税金等 | |||
| 敷金・礼金・仲介手数料等 | |||
| 特記事項 | 屋根 雪下ろし式 地すべり防止区域 (農政)(地すべり等防止法) | ||
| 備考 | 付属土地 計10筆〈田、畑、原野〉=1,596㎡ ・宅地2筆 住宅部分=568.59㎡ 車庫部分=47.67㎡ ※下記空き家バンクURLより、物件確認とお問合せをお願いいたします。 |
||
| 参照URL | 自治体ホームページ | ||
| 物件番号 | 空き家バンク物件 A331 | ||
| 取引態様 | |||
| 事業者名 | |||
| 事業者所在地 | |||
| 事業者連絡先 | |||
| 掲載日/更新日 | 2025年12月25日 | 2025年12月25日 | |
| 直通メールフォーム | |||
![]()


