| 物件種別 | 売買(建物・土地) | ||
| 売買価格 | 100万円 | ||
| 賃貸価格 | |||
| 物件所在地 | 青森県黒石市岩木町62 | ||
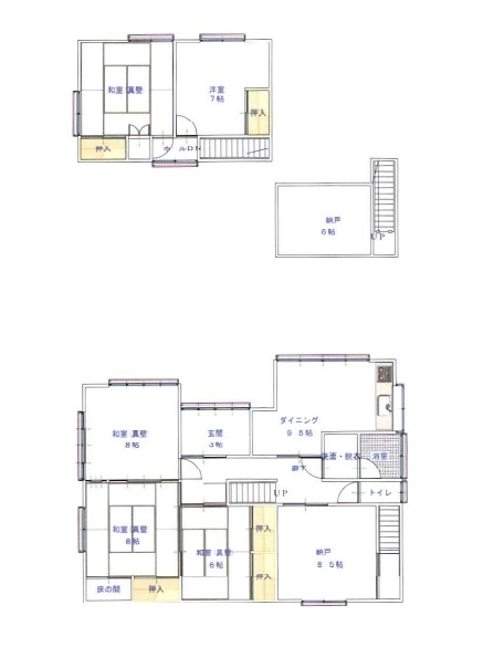
| 建物-構造 | 木造2階建 | 建物-築年月 | 1955年10月 |
| 建物-面積 | 49.22㎡ | 建物-間取 | 5SDK |
| 土地-面積 | 224.97㎡ | 土地-地目 | 宅地 |
| 土地-用途地域 | 土地-都市計画 | ||
| 土地-接道 | 二方 南 2.7m 公道 接面16m 東 3.3m 公道 接面11.5m セットバック有 | 土地-権利 | |
| 駐車場 | 有 | ||
| 交通 | |||
| 生活環境 | |||
| 設備-電気 | 設備-給湯 | ||
| 設備-水道 | 設備-排水 | ||
| 設備-トイレ | |||
| 増築・リフォーム歴 | |||
| 補修必要程度 | 補修費負担 | ||
| 補修必要内容 | |||
| 利用状況・空き家歴 | |||
| 付帯物件・その他 | |||
| 管理費・自治会費・税金等 | |||
| 敷金・礼金・仲介手数料等 | |||
| 特記事項 | |||
| 備考 | 古家有り、現況でのお渡しとなります。 ※下記空き家バンクURLより、物件確認とお問合せをお願いいたします。 |
||
| 参照URL | 自治体ホームページ | ||
| 物件番号 | 空き家バンク物件 | ||
| 取引態様 | |||
| 取扱事業者(お問合せ先) | 株式会社プラスワン |
||
| 掲載日/更新日 | 2026年1月4日 | 2026年1月4日 | |
| 直通メールフォーム | |||
![]()










