| 物件種別 | 売買(建物・土地) | ||
| 売買価格 | 300万円(応相談) | ||
| 賃貸価格 | |||
| 物件所在地 | 新潟県岩船郡関川村大字深沢666 | ||
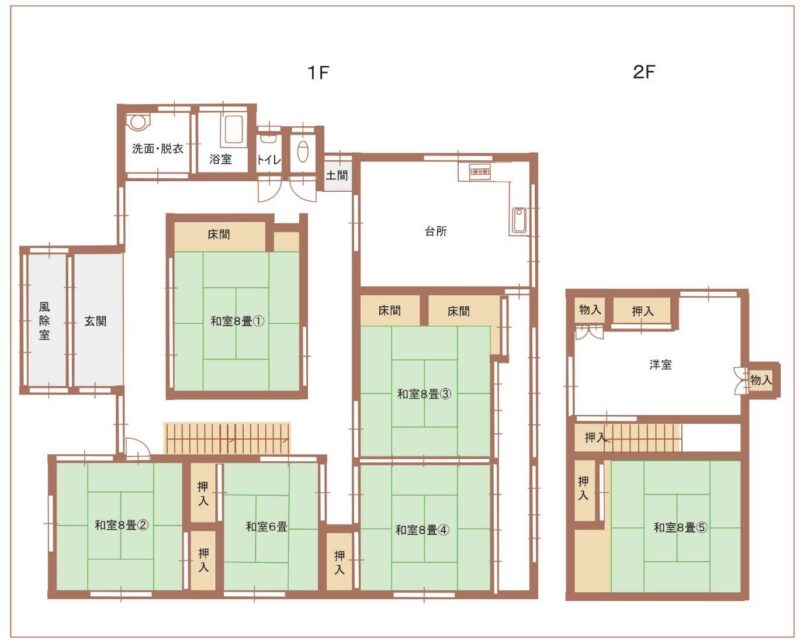
| 建物-構造 | 木造2階建 | 建物-築年月 | 昭和58年 |
| 建物-面積 | 194.07㎡ | 建物-間取 | 7DK |
| 土地-面積 | 577.95㎡ | 土地-地目 | |
| 土地-用途地域 | 土地-都市計画 | ||
| 土地-接道 | 村道 幅員4.0m | 土地-権利 | |
| 駐車場 | 車庫2台 スペース2台 | ||
| 交通 | 駅5.5km バス停0.2km | ||
| 生活環境 | 役所6.3km 郵便局0.9km 診療所6.3km スーパー12km コンビニ5.8km 保育園5.2km 小学校5.4km 中学校6.3km | ||
| 設備-電気 | 電気 | 設備-給湯 | プロパンガス, 薪 |
| 設備-水道 | 公営水道 | 設備-排水 | 浄化槽 |
| 設備-トイレ | 和式水洗トイレ | ||
| 増築・リフォーム歴 | |||
| 補修必要程度 | 補修必要 | 補修費負担 | |
| 補修必要内容 | (水回り) | ||
| 利用状況 | |||
| 付帯物件・その他 | |||
| 管理費・自治会費・税金等 | |||
| 敷金・礼金・仲介手数料等 | |||
| 特記事項 | 必ず現況を確認ください(建物は未登記) | ||
| 備考 | ・閑静で自然豊かな場所。雨戸を開けると和室③④からの景色が良い。 ※下記空き家バンクURLより、物件確認とお問合せをお願いいたします。 |
||
| 参照URL | 自治体ホームページ | ||
| 物件番号 | 空き家バンク物件 7-物-09 物件詳細(PDF) | ||
| 取引態様 | |||
| 事業者名 | |||
| 事業者所在地 | |||
| 事業者連絡先 | |||
| 掲載日/更新日 | 2026年1月10日 | 2026年1月10日 | |
| 直通メールフォーム | |||
![]()











