空き家バンク【売買】200万円 富山県下新川郡朝日町荒川 駅徒歩圏内・通学便利 庭・車庫・駐車場3台付き9SLDK2階建古民家 下水道

物件種別 売買(建物・土地)
売買価格 200万円
賃貸価格
物件所在地 富山県下新川郡朝日町荒川
建物-構造 木造2階建 建物-築年月 昭和46年
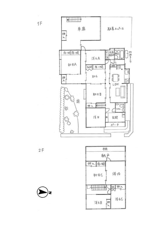
建物-面積 1階138.01㎡ 2階52.39㎡ 建物-間取 9SLDK
土地-面積 323.39㎡ 土地-地目
土地-用途地域   土地-都市計画  
土地-接道 前面道路 4m 土地-権利  
駐車場 車庫1台 駐車場3台
交通 駅0.9km
生活環境 役所1.6km 病院0.5km スーパー1.1km コンビニ1.5km 保育園0.2km 小学校0.6km 中学校2km
設備-電気 電気 設備-給湯 プロパンガス
設備-水道 簡易水道 設備-排水 公共下水道
設備-トイレ 洋式水洗トイレ
増築・リフォーム歴
補修必要程度 中規模 補修費負担
補修必要内容
利用状況 空き予定
付帯物件・その他 庭, 納屋
管理費・自治会費・税金等
敷金・礼金・仲介手数料等
特記事項
備考

※下記空き家バンクURLより、物件確認とお問合せをお願いいたします。

参照URL 自治体ホームページ
物件番号 空き家バンク物件 320
取引態様  
事業者名
事業者所在地
事業者連絡先
掲載日/更新日 2026年1月5日 2026年1月5日 [futureaction type="date"]
直通メールフォーム

Loading