長野県 - Sumai空き家

掲載空き家3,065件

地域選択

コンテンツへ移動
  • お気に入り物件リスト
  • 当サイトの使い方
  • 無料掲載方法

Sumai空き家

全国の空き家・古民家物件を地域別・条件別に検索できます

Sumai空き家 > 中部 > 長野県

長野県

1 2 … 12 >>

空き家バンク【売買】100万円 長野県北安曇郡小谷村大字北小谷 土蔵・作業スペース付き8部屋2階建古民家

売買価格:100万円 | 賃貸価格: | 8部屋 | 建物-面積:住宅 1階:151.73㎡ 2階:65.28㎡  倉庫(土蔵) 1階:23.14㎡ 2階:19.83㎡ | 土地-面積:307.43㎡ | 建物-築年月:築80年 | 物件番号:空き家バンク物件 85

空き家バンク【売買】50万円 長野県下高井郡山ノ内町大字夜間瀬 長閑な山間・広い敷地・明治16年築 物置・屋根裏収納・駐車場付き5K平屋古民家 広縁・続き間・湧水有

売買価格:50万円 | 賃貸価格: | 5K | 建物-面積:37.39㎡ | 土地-面積:2323.39㎡ | 建物-築年月:1883年1月 | 物件番号:空き家バンク物件 145

空き家バンク【売買】450万円 長野県南佐久郡佐久保穂町大字畑 駅徒歩圏内 ワークスペース・地下スペース・駐車場数台付き2K2階建 上下水道

売買価格:450万円 | 賃貸価格: | 2K+ワークスペース | 建物-面積:106.23㎡ | 土地-面積:114.24㎡ | 建物-築年月:昭和55年9月 | 物件番号:空き家バンク物件 135

空き家バンク【売買】200万円 長野県岡谷市岡谷市川岸東四丁目 自然豊かな場所・広い敷地 庭・駐車場付き9DK2階建 水洗トイレ

売買価格:200万円 | 賃貸価格: | 9DK | 建物-面積:1階111.79㎡ 2階66.24㎡ | 土地-面積:875㎡ | 建物-築年月:昭和51年 | 物件番号:空き家バンク物件 7-20

(交渉中)空き家バンク【売買】100万円 長野県木曽郡木曽町開田高原西野 2面テラス・ロフト・駐車場付き平屋 薪ストーブ有

売買価格:100万円 | 賃貸価格: | | 建物-面積:44.72㎡ | 土地-面積:609.00㎡ | 建物-築年月:昭和60年 | 物件番号:空き家バンク物件 251

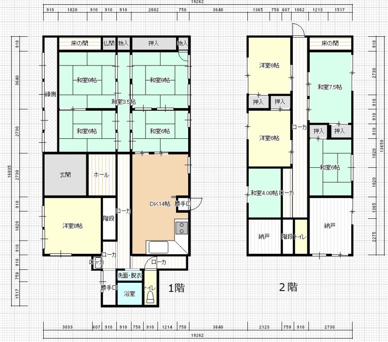
空き家バンク【売買】150万円(応相談)【賃貸】1万円(応相談)長野県上伊那郡中川村大草 広い敷地 庭・ベランダ・小屋・蔵・倉庫・屋根裏収納・駐車場3~4台付き7部屋2階建古民家 縁側・続き間有

売買価格:150万円(応相談) | 賃貸価格:1万円(応相談) | | 建物-面積:178.62㎡ | 土地-面積:968.38㎡ | 建物-築年月: | 物件番号:空き家バンク物件 39

空き家バンク【売買】480万円 長野県松本市安曇 隣接山林・バルコニー・カーポート付き6DK2階建 下水道

売買価格:480万円 | 賃貸価格: | 6DK | 建物-面積:148.25㎡ | 土地-面積:336.88㎡ | 建物-築年月:1982年11月 | 物件番号:空き家バンク物件 441043

空き家バンク【売買】150万円 長野県岡谷市川岸上四丁目 高台住宅地 庭・ベランダ・駐車場付き5DK軽量鉄骨2階建

売買価格:150万円 | 賃貸価格: | 5DK | 建物-面積:1階82.18㎡ 2階31.15㎡ | 土地-面積:355.91㎡ | 建物-築年月:昭和47年 | 物件番号:空き家バンク物件 7-19

空き家バンク【売買】300万円 長野県木曽郡大桑村野尻 長閑な谷川沿い 駐車場3台付き3DKコンパクト平屋

売買価格:300万円 | 賃貸価格: | 3DK | 建物-面積:69.02㎡ | 土地-面積:455.43㎡ | 建物-築年月:昭和56年 | 物件番号:空き家バンク物件 134

空き家バンク【売買】130万円 長野県岡谷市川岸西一丁目 庭・ベランダ・物置・駐車場付き5DK2階建 上下水道 縁側有

売買価格:130万円 | 賃貸価格: | 5DK | 建物-面積:1階81.68㎡ 2階28.98㎡ | 土地-面積:174.67㎡ | 建物-築年月:昭和48年 | 物件番号:空き家バンク物件 7-17

投稿ナビゲーション

← 過去の投稿

地域別

検索

お役立ちページ

  • お気に入り物件リスト
  • 当サイトの使い方
  • 無料掲載方法

お役立ちリンク

  • 全国の頑張っている方々

空き家バンク・リンク




当サイトのご利用方法 |無料掲載方法 | 運営 | プライバシーポリシー
(C) Sumai事務局